サーパスシティ白川壱番館

熊本県熊本市新南部5丁目6番100
1,290万円
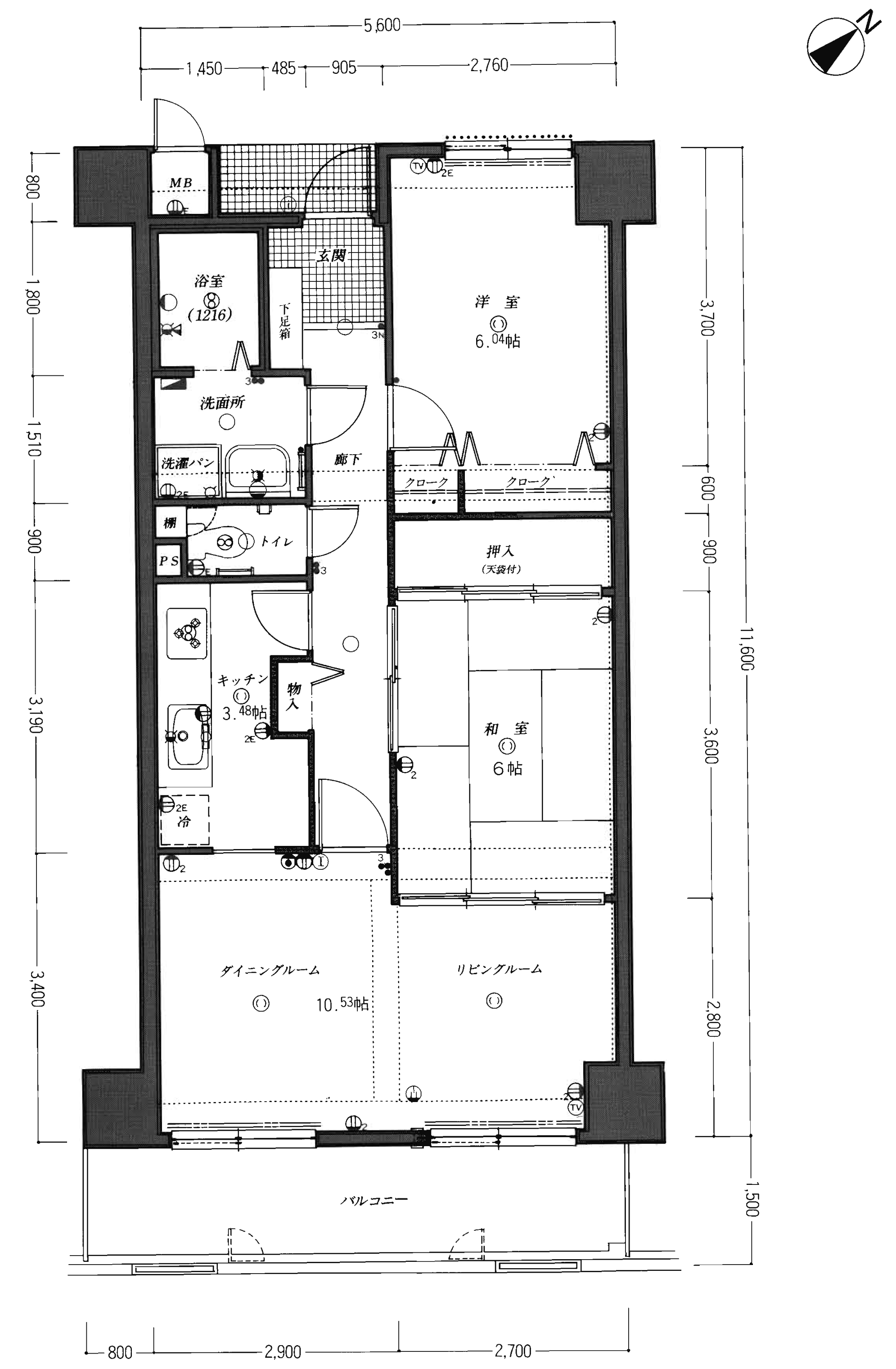
2LDK / 62.68㎡
1993/02 ( 築33年 )

眺望・断熱性能に優れた8階建の7階部分 温水洗浄便座 3口以上コンロ 室内洗濯機置場 都市ガス オートロック モニタ付インターホン エレベーター 宅配BOX 来客用駐車場 水周りや廊下などに手すりが設置されており、室内の移動をサポートしてくれます。

詳細情報

  • 間取り2LDK (LDK14、洋6、和6)
  • 専有面積62.68㎡ (壁芯)
  • バルコニー面積9.60㎡
  • 種別マンション
  • 築年月1993/02 ( 築33年 )
  • 構造RC(鉄筋コンクリート造)
  • 階/階建7階 / 8階建
  • 向き南東
  • 駐車場近隣あり 5523円~
  • 総戸数
  • 用途地域第二種中高層住居専用地域
  • 地勢
  • 土地権利所有権
  • 国土法届出
  • 現況空室
  • 引渡時期相談
  • 引渡条件
  • 校区
  • 取引態様専任
  • 備考敷地内駐車場は毎年抽選にて区画が決定されます。(¥6000~¥10000)
  • 最終更新日2026/02/10

設備・特徴

システムキッチン コンロ3口以上 ガスキッチン 給湯_ガス シャンプードレッサー 室内洗濯機置場 独立洗面台 温水洗浄暖房便座 TVインターホン 宅配ボックス エレベータ バイク置場 駐輪場 バルコニー

交通機関・地図

JR豊肥本線 竜田口駅 徒歩29分

熊本市立西原小学校まで1424m、熊本市立西原中学校まで2234m、セブンイレブン熊本新南部店まで522m、イワサキACE新南部店まで730m、ドラッグストアコスモス下南部店まで1005m、ゆめタウンサンピアンまで1980m